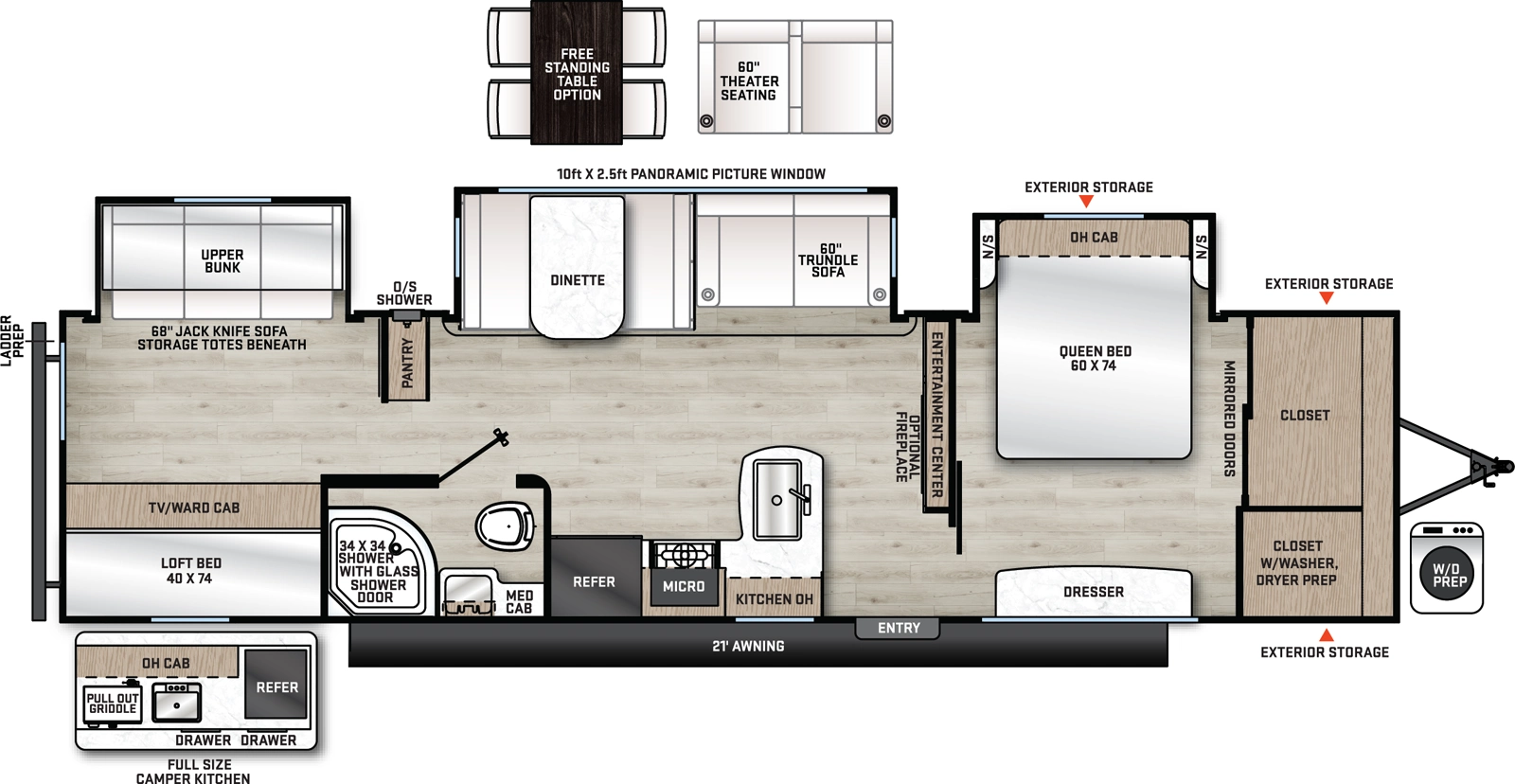
Aurora 34BHTS Floorplan

Built for large groups or multi-generational trips. Full bunkhouse and strong cargo capacity allow for loaded adventures. Durable frame and construction provide confidence for both boondocking and campground stays.

Hitch Weight
1,310 lb.
GVWR
10,652 lb.
UVW
9,152 lb.
CCC
1,500 lb.
Exterior Length
37' 10"
Exterior Height
11' 3"
Exterior Width
96"
Fresh Water
44 gal.
Gray Water
70 gal.
Black Water
30 gal.
Awning Size
21'

Specifications Definitions

GVWR (Gross Vehicle Weight Rating) – is the maximum permissible weight of the unit when fully loaded. It includes all weights, inclusive of all fluids, cargo, optional equipment and accessories. For safety and product performance do NOT exceed the GVWR.

GCWR (Gross Combined Weight Rating) – is the maximum permissible loaded weight of your motor home and any towed trailer or towed vehicle. Actual GCWR of this vehicle may be limited by the sum of the GVWR and the installed hitch receiver maximum capacity rating; see hitch rating label for detail.

GAWR (Gross Axle Weight Rating) – is the maximum permissible weight, including cargo, fluids, optional equipment and accessories that can be safely supported by a combination of all axles.

UVW (Unloaded Vehicle Weight)* – is the typical weight of the unit as manufactured at the factory. It includes all weight at the unit’s axle(s) and tongue or pin and LP Gas. The UVW does not include cargo, fresh potable water, additional optional equipment or dealer installed accessories.
*Estimated Average based on standard build optional equipment.

CCC (Cargo Carrying Capacity) ** – is the amount of weight available for fresh potable water, cargo, additional optional equipment and accessories. CCC is equal to GVWR minus UVW. Available CCC should accommodate fresh potable water (8.3 lbs per gallon). Before filling the fresh water tank, empty the black and gray tanks to provide for more cargo capacity.
**Estimated Average based on standard build optional equipment.

Each Forest River RV is weighed at the manufacturing facility prior to shipping. A label identifying the unloaded vehicle weight of the actual unit and the cargo carrying capacity is applied to every Forest River RV prior to leaving our facilities.

The load capacity of your unit is designated by weight, not by volume, so you cannot necessarily use all available space when loading your unit.

Actual towing capacity is dependent upon your particular loading and towing circumstances, which includes the GVWR, GAWR and GCWR as well as adequate trailer brakes. Please refer to the Operator's Manual of your vehicle for further towing information.

Note: Specifications are subject to change without notice.

 
  • Key Construction and Equipment Features

    • 15,000 BTU GE Ducted A/C w/ Heat Pump
    • Solid Surface Countertops in Kitchen Galley (No T-Mold)
    • GE 60K BTU Tankless Water Heater
    • Norco Electromagnetic, Powder Coated Chassis
    • 6'9" Interior Height on Tandem Axles
    • Screwed Cabinet Construction w/ Pocket Bored Lumber Core Stiles
    • 5/8" Tongue & Groove Flooring
    • 5/8" Plywood Bed Base, Dinette Base, Backers in Walls, & Shower Base
    • Full Length Frame E-Coated Outriggers
    • 2'X3' Floor Joists on Approximately 12" Centers w/ Horizontal Support Studs
    • 5" Floor To Frame Steel Lag Bolts
    • Darco Subfloor Protective Wrap
    • Seamless Roof Membrane w/ Limited Lifetime Warranty
    • Water Heater By-Pass Winterization Kit
    • 12V Demand Water Pump
    • 35,000 BTU Furnace w/ 2 Year Warranty
    • Smooth Aluminum Radius Front
  • Standard Exterior Features

    • 10 Ft. Slideout Window
    • Front Radius Lights
    • Safe-T Rail Door Assist on Main Entry Door
    • Rear Ladder Prep
    • Enclosed, Fully Sealed Underbelly
    • Friction Hinge Entry Door
    • SolidStep Entrance Steps IPO Flip-Down Steps
    • Universal Solar Prep w/ Roof & Charge Controller Connections & Wiring
    • Siphon 360 Roof Vent
    • Power Tongue Jack
    • Magnetic Baggage Door Latches
    • Upgraded JBL Elite Exterior Speakers
    • Electric Awning w/ Multicolor Lights and Remote (16 Colors)
    • Battery Disconnect
    • Outside Hot/Cold Shower w/ Hands Free Holder
    • Black Tank Flush
    • Aluminum Sport Wheels
    • Nitrogen Filled Radial Tires
    • Polished Aluminum Fender Skirts
    • Leash Link D-Ring Hookup
    • Exterior 110V GFCI Protected Receptacle
    • Exterior RG-6 Coax Cabling and Satellite Prep
    • G20 Privacy Tinted Windows
    • Two 20 lb. LP Tanks w/ ABS Bottle Cover
    • Spare Tire
    • Rear View Camera Prep
    • Diamond Plate Rock Guard
    • Rain Gutters w/ Drip Spouts
    • LP Quick Connect w/ Camp Kitchen
    • Blackstone Griddle in Camp Kitchens
    • Full Size Exterior Camp Kitchen (32BDS & 34BHTS)
    • Bottle Opener (Exterior Camp Kitchens)
    • Flush Mount Baggage Doors w/Radius Corners
  • Standard Interior Features

    • Full GE Kitchen Suite
    • Solid Surface Countertops in Kitchen Galley (No T-Mold)
    • 12V 2-Way Maxxair Vent Fan in Living Room w/ Wall Remote
    • 39" or Larger Smart TV (FP Dependent)
    • Porcelain Pedestal Toilet
    • Trundle Sofa IPO Jackknife Sofa (Per Floorplan)
    • Stainless Steel Drying Rack
    • All-In-One Control Panel w/ Dimmer Switch
    • Kitchen Sink Glass Rinser
    • Carpetless Unit w/ Lino in Slide-Out
    • JBL Entertainment Package
    • Paper Towel Holder
    • GE 10.7 Cu. Ft. 12V Refrigerator
    • GE Stainless 3 Burner Gas Range
    • GE Stainless Microwave
    • 12V USB in Kitchen
    • Pull Down Kitchen Faucet
    • ABS Tub/Shower Surround
    • Skylight Above Tub/Shower
    • Easy Access Booth Dinette Storage Doors
    • LED Interior Lighting
    • Bedroom USB Surface Mounts (2)
    • USB Surface Mount Near Bunk Beds
    • Decorative Fitted Bedsheet
    • Deep Undermount Farm Style Sink
    • Silverware Kitchen Drawer
    • Shower/Coat Hooks
    • Pedestal Thermofoil Dinette Table
    • Black Night Shades
    • Hard Valance Window Treatment w/ Decorative Lambrequins
    • 12V Power Vent Fan in Bathroom
    • Medicine Cabinet w/ Mirror
    • Bathroom Mirror on Aurora Light
    • Bunkroom Jackknife Sofa (29QBS, 32BDS, & 34BHTS)
    • Solid Bunk Room Door
    • Solid Master Bedroom Door
    • Mirrored Wardrobes in Master Bedroom (N/A Bed Slide Models)
    • Underbed Storage w/ Separation from Outside Front Storage
    • Washer/Dryer Prep (24RBS, 31KDS, 32BDS, 34BHTS)
    • Toothbrush and Soap Holder in Bathroom
  • Options

    • Power Theater Seating IPO Trundle Sofa (Standard in 32RLTS)
    • Peak Performance Solar Package - 30A Controller w/ 200W Solar Panel
    • 30" Built in Fireplace
    • Free-Standing Table w/ 4 Chairs (N/A U-Dinette Floorplans)
    • 7 cu. ft. Gas/Electric Refrigerator
    • 50 Amp Service w/ Second A/C Prep (N/A 24RBS & 28BHS)
    • 50 Amp Service w/ Second 13.5 A/C (N/A 24RBS & 28BHS)
    • 50 Amp Service with (3) Non-Ducted 18K BTU Furrion High Efficiency A/Cs with Heat Pumps (N/A 24RBS, 28BHS, 26FKDS)
    • Stackable Washer/Dryer (31KDS, 32RLTS, 32BDS, 34BHTS)
    • 2nd Queen Bed IPO Bunkroom & Camp Kitchen (34BHTS Only)
    • Ramp Door Patio Package (Toy Haulers)
    • Two (2) Pushback Recliners (26ATH)
    • Fuel Station w/ 30 Gallon Fuel Tank (29ATH)
  • Safety Features

    • Smoke Alarm
    • LP/CO Gas Detector
    • Fire Extinguisher
    • Fire Escape Windows
    • Entrance Door Window
    • Dead-Bolt Lock on Entry Door