Your privacy is important to us. This website uses cookies to enhance user experience and to analyze performance and traffic on our website. By using this website, you acknowledge the real-time collection, storage, use, and disclosure of information on your device or provided by you (such as mouse movements and clicks). We may disclose such information about your use of our website with our social media, advertising and analytics partners. Visit our Privacy Policy and California Privacy Disclosure for more information on such sharing.

Log In

Our Brands

Helpful Tools

Search

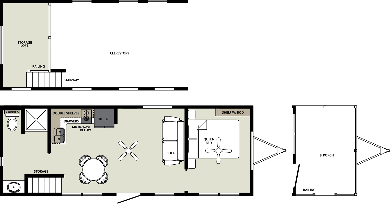
Explore 2026 APC-PC-33SHPL Premium Cabin Series - Loft

With 396 sq ft and a loft layout, this model maximizes space by lifting sleeping quarters above living areas. Its durable construction and efficient footprint makes it appealing for outdoor enthusiasts who need flexibility, function, and a strong connection to nature.

Box Size
33 X 12
Square Feet
396
Bedrooms
1
Bathrooms
1