Your privacy is important to us. This website uses cookies to enhance user experience and to analyze performance and traffic on our website. By using this website, you acknowledge the real-time collection, storage, use, and disclosure of information on your device or provided by you (such as mouse movements and clicks). We may disclose such information about your use of our website with our social media, advertising and analytics partners. Visit our Privacy Policy and California Privacy Disclosure for more information on such sharing.

Log In

Our Brands

Helpful Tools

Search

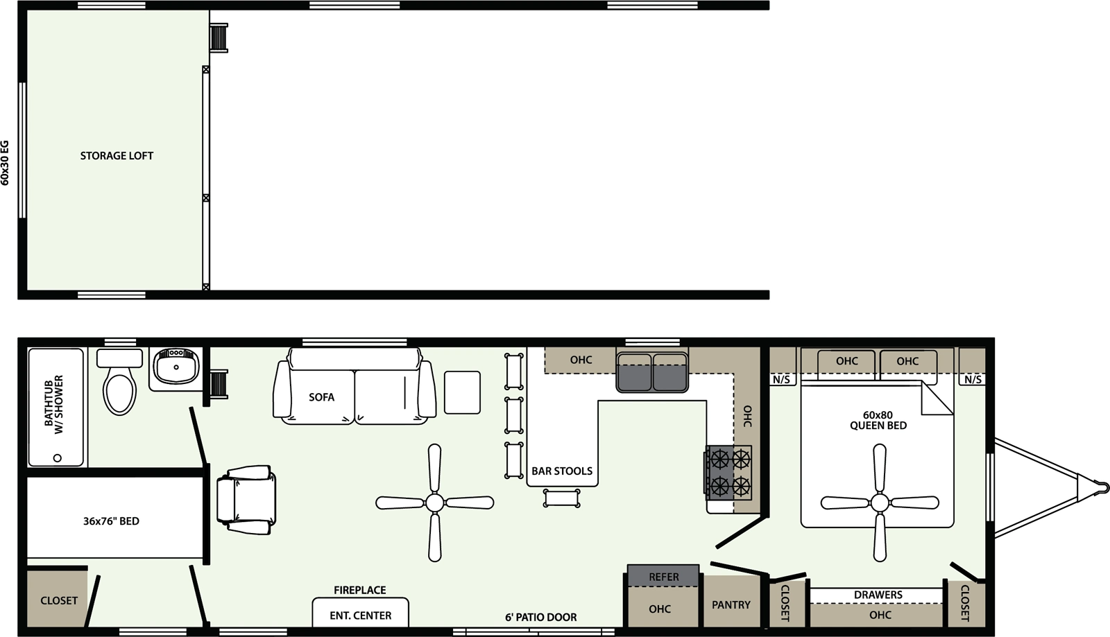
Explore 2026 39BHL Quailridge US Models - all units available as non-loft

The Quailridge 39BHL spans 396 sq ft and includes two bedrooms. This layout is ideal for families or friends who want separate sleeping zones but still enjoy shared living and dining under one rugged roof. Built with park model strength, it fits in at campground sites while maintaining quality that resonates with outdoor adventurous lifestyles.

Box Size
36 X 11
Square Feet
396
Bedrooms
2
Bathrooms
1